For Sale € 1,375,000 Necesita Reforma

PALMA – Ático en el Paseo Marítimo con Impresionantes Vistas al Mar y la Catedral

PALMA

Property Description

Ático en Primera Línea en Palma – Ubicación Privilegiada en el Paseo Marítimo

Este espectacular ático en Palma es una verdadera joya para los amantes de las vistas panorámicas al mar, la vida urbana vibrante y las ubicaciones exclusivas en primera línea. Situado directamente en el prestigioso Paseo Marítimo, esta propiedad única ofrece vistas despejadas al mar Mediterráneo, al puerto deportivo y a la majestuosa Catedral de La Seu — todo desde tu propia terraza privada y soleada.

Rara vez se encuentran áticos en el Paseo Marítimo con estas características. Con una orientación inmejorable, distribución espaciosa y gran potencial de reforma, esta es una oportunidad destacada en el mercado de inmobiliaria en Palma.

Características Destacadas de Este Ático en el Paseo Marítimo

  • Ubicación en primera línea de mar en el famoso Paseo Marítimo de Palma
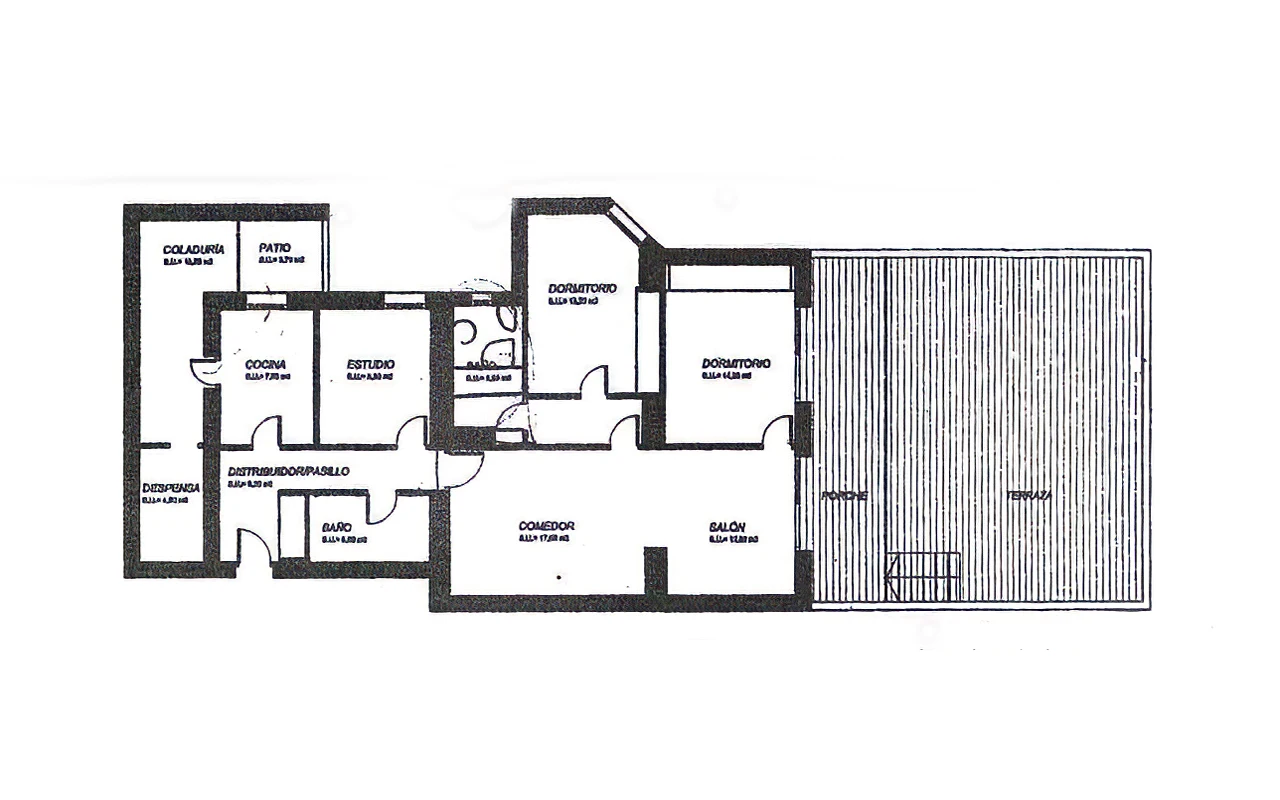
  • Aprox. 142 m² de superficie habitable más una amplia terraza – superficie total aprox. 210 m²
  • Tres dormitorios y dos baños
  • Gran terraza privada con vistas de 180° al mar, al puerto y a la catedral
  • Acceso directo desde el paseo a la entrada del edificio
  • Ascensor en la finca
  • Ideal para reformar – excelente potencial de revalorización
  • A poca distancia de restaurantes, cafés, marinas y del casco antiguo de Palma

Esta propiedad en Palma ofrece una superficie habitable de aprox. 142 m², complementada por una gran terraza que suma una superficie total de aprox. 210 m². Es perfecta para quienes buscan una base exclusiva para crear su hogar soñado — ya sea como residencia vacacional, segunda vivienda o inversión a largo plazo.

Vida al Aire Libre con Estilo – Ático en Palma con Terraza Panorámica

Salir a esta impresionante terraza es suficiente para entender por qué este ático en el Paseo Marítimo es tan especial. Desde los amaneceres hasta las puestas de sol, las vistas al Mediterráneo son simplemente inolvidables. Observa los barcos llegar al puerto, siente la energía del paseo y disfruta de la silueta iluminada de la catedral por la noche.

El interior cuenta con amplias zonas de estar llenas de luz natural, una distribución funcional y tres dormitorios bien dimensionados. La propiedad está lista para ser reformada, lo que permite dar rienda suelta a la creatividad con un diseño interior a medida.

Propiedad en Palma – Inversión en Ubicación y Estilo de Vida

El Paseo Marítimo es una de las zonas más icónicas y codiciadas de Palma — y no es casualidad. Ofrece lo mejor de ambos mundos: vistas al mar y acceso inmediato al corazón cultural y gastronómico de la ciudad.

Rodeado de algunos de los mejores restaurantes, bares de diseño y marinas de lujo de Palma, este ático está en el centro de todo. Ya sea una cena tranquila con vistas o un paseo vespertino animado, todo está a tu alcance.

Desde aquí, se llega fácilmente a pie o en bici al casco antiguo, Santa Catalina, el puerto o la playa. Una ubicación insuperable que combina privacidad, comodidad y valor añadido — una apuesta segura dentro del mercado de propiedades en Palma.

Inmobiliaria Palma – Ático para Reformar con Gran Potencial

Para inversores o compradores exigentes, este ático representa un proyecto con grandes posibilidades. Su distribución y espacio exterior permiten crear una vivienda moderna de alta gama con vistas de ensueño. Los áticos en el Paseo Marítimo en primera línea se están convirtiendo en auténticas piezas de coleccionista.

Ya sea como vivienda habitual, segunda residencia o inversión, esta propiedad ofrece seguridad y rentabilidad dentro del sector de inmobiliaria en Palma. La combinación de ubicación, vistas y escasez garantiza una sólida revalorización a futuro.

Resumen – Por Qué Este Ático en Palma es Único

  • Ático en el Paseo Marítimo en primera línea de mar
  • Aprox. 142 m² interiores + terraza amplia (superficie total aprox. 210 m²)
  • Vistas abiertas al mar, puerto y catedral
  • Distribución generosa con 3 dormitorios y 2 baños
  • Gran potencial de reforma
  • Ubicación privilegiada junto a los mejores restaurantes y servicios de Palma
  • Con ascensor y acceso directo desde el paseo
  • Ideal para vivir, invertir o disfrutar

📞 Teléfono: +34 600 597 673
📧 Correo: mail@luxuryonmallorca.com
🌐 Web: www.luxuryonmallorca.com

Contáctanos para organizar una visita privada – estaremos encantados de enseñarte esta joya en persona.
LUXURY ON MALLORCA – The Art of Fine Living.

Property Features

Propery Type
Ático
Property Id
223
Condition
Necesita Reforma
Bed Rooms
3
Bathrooms
2
Property Size
142 m2
Lavavajillas
Yes
Calefacción
Yes
Refrigerador
Yes
Ascensor
Yes
Terraza en la azotea
Yes

Public Facilities

Restaurantes
menos de 1 minuto caminando
Playa
14 minutos en bicicleta
Aeropuerto
10 minutos en coche

Floor Plans

Location

Similar Properties

See All
LUXURY ON MALLORCA | Inmobiliaria
Resumen de privacidad

Esta web utiliza cookies para que podamos ofrecerte la mejor experiencia de usuario posible. La información de las cookies se almacena en tu navegador y realiza funciones tales como reconocerte cuando vuelves a nuestra web o ayudar a nuestro equipo a comprender qué secciones de la web encuentras más interesantes y útiles.