2

2

For Rent € 2,300 / month Good Condition

PALMA – Luxury Apartment for Rent in El Terreno with Terrace in Exclusive Residence

PALMA - El Terreno

Property Description

Luxury Apartment Palma for Rent in El Terreno with Terrace, Open Living Area and Premium Comfort

This elegant Luxury Apartment Palma for Rent is located in the increasingly sought-after district of El Terreno, one of Palma’s most characterful and desirable residential areas. Combining contemporary architecture, a bright interior layout and attractive community features, this property offers an exceptional opportunity for anyone looking to Rent Apartment El Terreno in a modern, high-quality complex close to the heart of Palma.

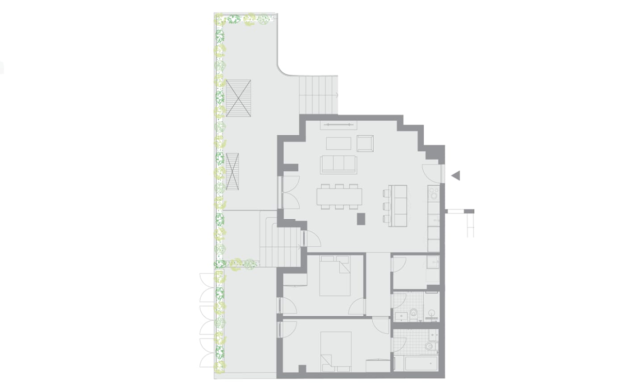
The apartment has a constructed interior area of approximately 99.79 m² as shown in the floor plan, plus an exterior terrace of approximately 22.69 m². For presentation and marketing purposes, the property is described with approximately 105 m² of living space, as the open terrace has been proportionally included at 25%. This is a common and transparent way to reflect the additional lifestyle value and usable living quality created by generous outdoor space. Especially in Mallorca, terraces form an important extension of the home and significantly enhance everyday comfort.

As soon as you enter the property, you are welcomed by a light-filled open-plan layout that creates an immediate feeling of modern elegance. The entrance leads directly into the stylish living and dining area with integrated kitchen. On the right-hand side, the inviting lounge area offers a comfortable setting for relaxation, while on the left-hand side, the fully equipped kitchen with dining space provides a practical yet refined environment for daily living and entertaining. From this central area, there is direct access to the private terrace, which extends the interior outdoors and creates the perfect place to enjoy Mallorca’s mild climate, whether for breakfast in the morning or relaxed evenings in the open air.

The apartment offers two bedrooms and two bathrooms, one of them en suite. Straight ahead from the living area, the layout continues into the more private sleeping quarters. The master bedroom is designed as a comfortable retreat and benefits from its own en suite bathroom, which includes a bathtub. This detail adds a touch of comfort and quality that is not always easy to find in modern rental properties. Next to the master suite is the second bedroom, which can be used as a guest room, a children’s bedroom or even a stylish home office, depending on individual needs. In addition, there is a second separate bathroom as well as a dedicated utility room equipped with washing machine and tumble dryer, making the apartment especially practical for everyday use.

The property is offered unfurnished. Any furniture or decorative elements visible in the marketing photos serve exclusively for illustration purposes and are intended only to help visualise how the rooms may look when furnished. This gives future tenants the freedom to create their own living concept while enjoying a modern, neutral and high-quality architectural basis. The kitchen, however, is naturally fully equipped and ready for use.

Rent Apartment El Terreno with 2 Bedrooms, 2 Bathrooms, Underfloor Heating and Air Conditioning

This stylish Rent Apartment El Terreno option stands out not only because of its location, but also because of its comfort features. The apartment is equipped with underfloor heating and air conditioning, ensuring a pleasant indoor climate throughout the year. These modern installations make the home suitable for all seasons and add to the premium residential experience. The quality of the materials, the clean architectural lines and the intelligent layout all contribute to a comfortable and elegant atmosphere.

The open-plan concept creates a seamless connection between cooking, dining and living. This contemporary design approach is particularly attractive for tenants who value brightness, flow and functionality. The terrace becomes a natural continuation of the interior and increases the sense of space significantly. Altogether, the apartment offers a highly appealing combination of urban style, Mediterranean outdoor living and modern convenience.

Luxury Apartment Palma for Rent in Exclusive Complex with Two Community Pools, Gym and Optional Parking

Residents of this attractive development benefit from access to excellent communal amenities. The complex offers two community swimming pools, ideal for cooling off during the warmer months and enjoying the lifestyle associated with modern residential living in Palma. In addition, there is a gym within the complex, providing added convenience for those who appreciate wellness and fitness without leaving home.

Another important advantage is the flexibility of additional services. Parking spaces and storage rooms can be rented separately, allowing tenants to adapt the property to their personal requirements. Especially in Palma, having the option of private parking and extra storage can represent a significant practical and lifestyle benefit. This makes the property even more attractive for residents looking for comfort, organisation and convenience in everyday life.

Rent Apartment El Terreno in Palma Near Paseo Marítimo, City Centre and Mediterranean Lifestyle Highlights

El Terreno is one of the most exciting areas in Palma for those who wish to enjoy a residential environment full of charm, authenticity and urban flair. Over recent years, the neighbourhood has become increasingly popular thanks to its strategic location near the Paseo Marítimo, the marina and the city centre. Here, traditional Palma character meets a fresh and cosmopolitan atmosphere. Residents enjoy quick access to restaurants, cafés, boutique hotels, cultural attractions and green spaces, while the sea and Palma’s vibrant lifestyle are just moments away.

Choosing to Rent Apartment El Terreno means enjoying one of the most dynamic urban settings on the island. The area is ideal for those who appreciate city life with Mediterranean ease, whether for a primary residence, a longer stay in Mallorca or a sophisticated base in Palma. The connection to the rest of the city is excellent, and many of Palma’s most desirable spots are within easy reach.

Luxury Apartment Palma for Rent – Modern Design, Terrace Living and Refined Urban Comfort in El Terreno

This property is an outstanding choice for anyone searching for a Luxury Apartment Palma for Rent with high-quality features, generous outdoor space and an excellent address. The combination of two bedrooms, two bathrooms, private terrace, fully equipped kitchen, utility room, underfloor heating, air conditioning and access to premium community facilities creates a residence that is both elegant and highly functional.

It is rare to find a property that combines modern design, practical layout and desirable amenities so successfully in one of Palma’s most appealing neighbourhoods. For tenants who are looking for quality, style and location, this apartment represents a compelling opportunity in the market. It is ideal for professionals, couples, small families or anyone seeking a refined home in Mallorca’s capital.

Palma and El Terreno – Prime Location for Luxury Living and Long-Term Rental in Mallorca

Palma is one of the Mediterranean’s most attractive capitals, known for its elegant architecture, vibrant gastronomy, stylish boutiques, cultural richness and year-round quality of life. Living here means combining international flair with relaxed island living. El Terreno, in particular, offers a unique urban character and continues to gain value as a residential destination thanks to its position, charm and atmosphere.

If you are looking for a home that reflects contemporary living in one of the best areas of the city, this apartment deserves special attention. It offers exactly what many tenants seek today: modern design, premium comfort, outdoor space, communal amenities and a prime Palma location and is available for long term rental.

For more information or to arrange a private viewing, please get in touch.

LUXURY ON MALLORCA The Art of Fine Living

Property Features

Propery Type
Apartment
Property Id
258
Condition
Good Condition
Bed Rooms
2
Bathrooms
2
Property Size
105 m2
Pet Friendly
Yes
Air Condition
Yes
Community Pool
Yes
Gym
Yes
Underfloor Heating
Yes
Terrace
Yes
Storage
Yes
Dishwasher
Yes
Fridge
Yes
Garage
Yes
Heating
Yes
Elevator
Yes

Public Facilities

Restaurants
less than one minute walking
Beach
5 minutes by car
Golf Course
10 minutes by car
Airport
9 minutes by car

Video


Floor Plans

Location

Similar Properties

See All
LUXURY ON MALLORCA | Real Estate
Privacy Overview

This website uses cookies so that we can provide you with the best user experience possible. Cookie information is stored in your browser and performs functions such as recognising you when you return to our website and helping our team to understand which sections of the website you find most interesting and useful.